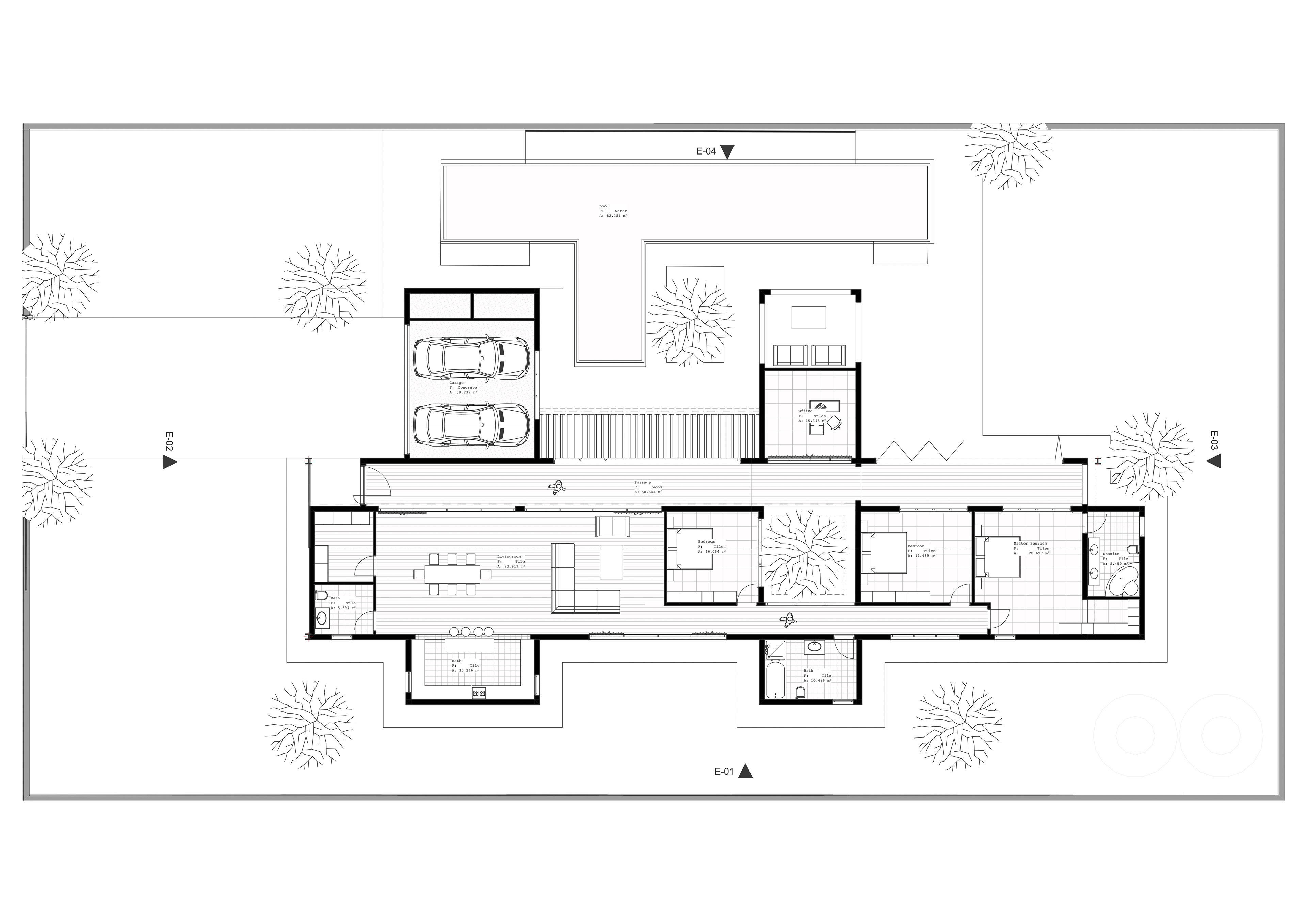
Amended renovation proposal of an existing Private residential home in Harare, goal to add a guest wing and a pool room, improve the facade, finish and remodel the landscape .all in all the 4-level building is 7 ½ bedrooms, 6½ bathrooms, dining theatre, office, 3 living rooms, laundry, huge kitchen, triple lockup garage, staff quarters, storage and power room ... construction expected to start in early 2023.

You may also like

Back to Top