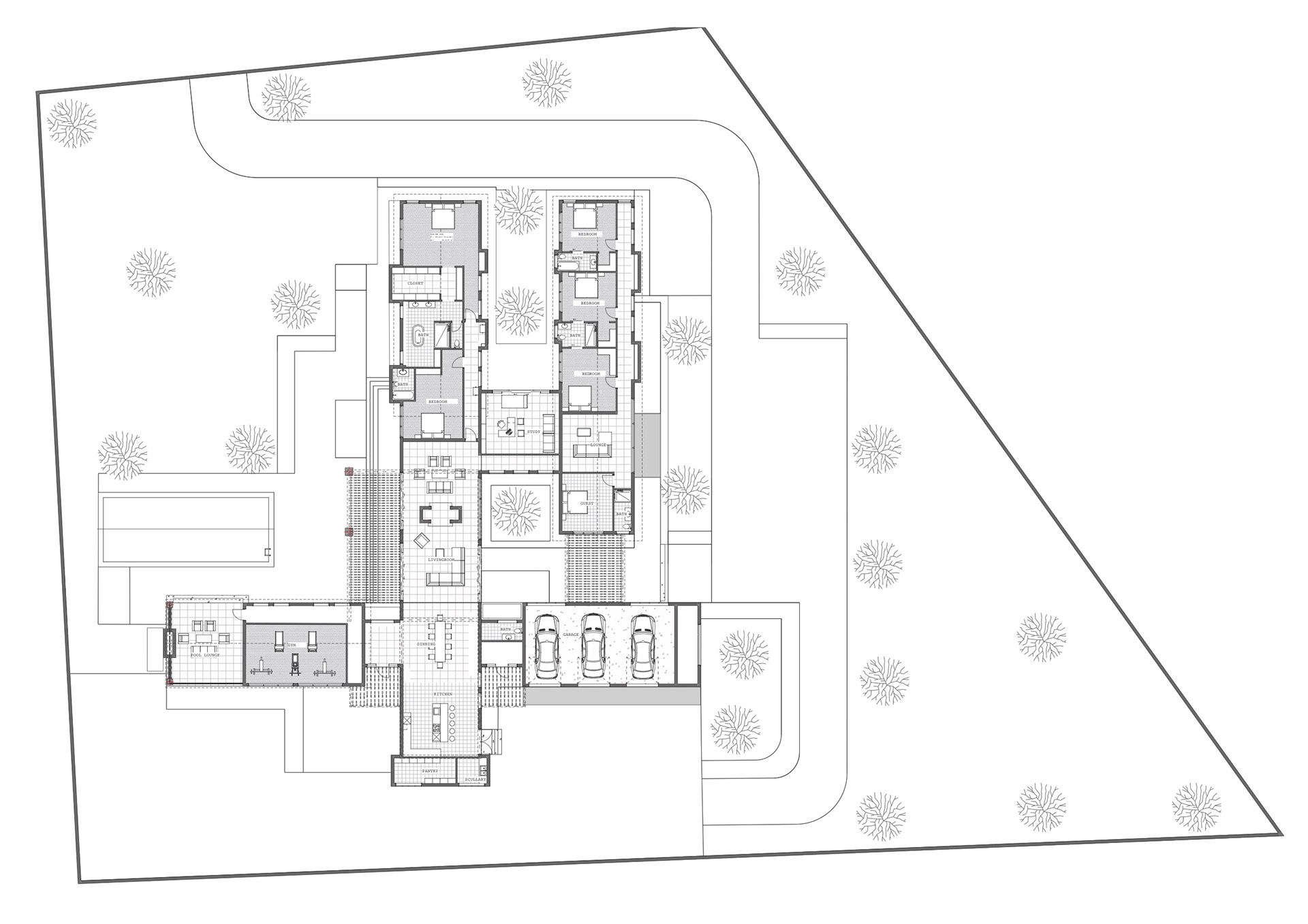
Existing 2 bedroom super structure Private residence in the Carrick Creagh Estate...Aim was to design exterior and interior finishes designs, propose furniture and landscape with reference to the sloped site,
HABITAT 7
Existing 2 bedroom super structure Private residence in the Carrick Creagh Estate...Aim was to design exterior and interior finishes designs, propose furniture and landscape with reference to the sloped site